
Navštíveno 205x

nezustala vam nekomu doma nejaka takova za rozumny peniz? je to na XTC 380
potrebuju ted jenom neco nez si vylaminuju poradnou podle predstav
dik.


17.09.2007, 18:28 |
cendler | Upraveno: 2007-09-17 18:29:25
Měl bych tohle musel by jsi si to upravit(větší díru na sw), ale je to kolem jenom cca 60L
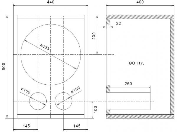
[ Link ]
dik za nabidku ale tohle je moc placate a dost mala litraz :(

17.09.2007, 18:53 |
macek Mam po 13W7 sterbinu nechaval jsem delat uzavrenku protoze ta sterbina byla moc velka do mojeho kufru rozmery jsou tusim 65x48xa cca 50 nevim presne delal mi ji Kralik( Kral007) Muzes se ho doptat na rozmery mam ji u nej schovanou jinak vnitri objem je asi 68L

sorry, za OT:ale nějak ten měsíc,měsíců jsem tu nabízel bednu,přesně tu co hledáš ty... byl v ní xtc 380,takže by ti sedla,ale ted už je rosekaná:-(( to je pech
rozmery souhlasi s www vyrobce :-)

18.09.2007, 06:24 |
TUNER Já mam doma bednu po XTC 1500,to by mělo bejt snad stejný. Jenže je dost specifická,zkosená.Byla ve škodofce vzadu místo sedaček... :-( Taky asi na destrukci....
diky kluci, uz sem sehnal :o)

no a uz mi to v aute i tlaci :) neveril bych jake to dokaze nadelat peklo kdyz to krmim blbyma 230RMS ze 4kanalu, kterym taham i kompa :)


19.09.2007, 08:29 |
TUNER No mě dělá teď větší peklo 10W7 než před tim ta 15" ...))
tak srovnavas nesrovnatelne :) JL je trochu o necem jinem